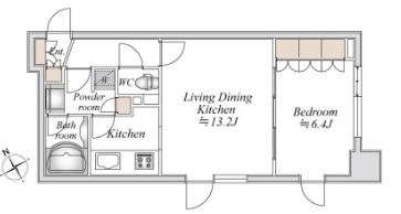
1月末 ~2月上旬入居可 仲介手数料ゼロ 隅田川ビュー1LDK 賃料 193,000円 間取り 1LDK 管理費 12,000円 専有面積 46.64㎡ 都営浅草線 浅草橋駅まで徒歩7分、JR総武線 浅草橋駅まで徒歩8分。バルコニーから隅田川を望めます!雨の日のお洗濯にも大活躍な浴室乾燥機能&TVモニタ付インターホンでセキュリティ面にも配慮♪ 部屋の特徴・設備 バストイレ別 バルコニー エアコン ガスコンロ対応 クロゼット フローリング TVインターホン 浴室乾燥機 オートロック 室内洗濯置 陽当り良好 シューズボックス システムキッチン 追焚機能浴室 角住戸 温水洗浄便座 脱衣所 エレベーター 洗面所独立 洗面化粧台 2口コンロ 駐輪場 宅配ボックス BS・CS 防犯カメラ 照明付 オートバス グリル付 全居室洋室 保証人不要 仲介手数料不要 全居室フローリング 2沿線利用可 ディンプルキー CS ネット使用料不要 ダブルロックキー 24時間換気システム 外壁コンクリート リバーサイド 人感照明センサー 耐震構造 2駅利用可 3駅以上利用可 3沿線以上利用可 駅徒歩10分以内 24時間ゴミ出し 敷地内ごみ置き場 日勤管理 LDK12畳以上 都市ガス 洗面所にドア 室内物干機 シーリングファン 天井高シューズクロゼット BS 礼金1ヶ月 通風良好 周辺情報 スーパーリコス(スーパー)まで165m ファミリーマート浅草橋3丁目店(コンビニ)まで448m セブンイレブン台東浅草3丁目東店(コンビニ)まで481m ドラックセイムス蔵前3丁目店(ドラッグストア)まで746m 蔵前1丁目 交番(警察署・交番)まで320m マンション裏の隅田川(その他)まで10m 物件概要 敷金/礼金 無し/1ケ月 アクセス 都営浅草線/浅草橋駅 歩8分 都営浅草線/蔵前駅 歩10分 JR総武線/両国駅 歩16分 所在地 東京都台東区蔵前1 間取り詳細 1LDK 構造 鉄骨 12階建て 階建 8/12階建 築年月 2008年1月 保証会社 保証会社利用必 レジデンシャルサービル 【収納代行】初回保証料賃料共益費等50%(連保無)、30%(連保有)、以後1年毎25% 月々口座振替 駐車場 ー 入居 2026年1月下旬~ 取引態様 仲介 条件 - 総戸数 36戸 契約期間 普通借家 2年 仲介手数料 無し ほか初期費用 お問い合わせください 備考 巡回管理 お問い合わせお待ちしております。 氏名 【必須】 フリガナ 【必須】 メールアドレス 【必須】 電話番号 ご要件 【必須】 —以下から選択してください—賃貸売買その他 お問い合わせ内容 【必須】 [個人情報の取扱について] お客様の個人情報につきましては、お問い合わせに関するお客様との連絡および弊社が取り扱うサービスに関する契約の履行、情報に使用いたします。法令に基づく場合を除き、第三者への提供は一切行いません。また、弊社の個人情報の取り扱いに関する基本方針は下記リンクよりご覧ください。 個人情報保護方針 個人情報保護方針に同意します。 デュオフラッツ浅草田原町 1301号室